Chỉ với khoảng gần 123 triệu, căn hộ 55m² sẽ đẹp hiện đại, tiện ích với nội thất ấn tượng nhờ sự tư vấn thiết kế của các KTS.
- · Không thể rời mắt khỏi mẫu bàn ăn mặt đá đầy cảm hứng
- · Gợi ý bàn ăn mạ PVD hiện đại cho căn hộ, chung cư
- · Trang trí nhà bếp với mẫu bàn ăn mạ vàng được nhiều người yêu thích
- · Chọn bàn ăn mạ titan làm sáng bừng không gian nhà bếp
Xin chào chuyên mục Nhà Hay,
Em là Cường. sinh viên năm 3 đại học Bách Khoa Hà Nội, bố mẹ em mới mua cho em căn hộ studio có diện tích 55m², có đầy đủ công năng như 1 căn hộ bình thường như khách, ăn, bếp và 1 phòng ngủ, rất mong KTS tư vấn về cách bài trí nội thất không gian sao hợp lý và tiết kiệm được chi phí ở mức tối đa.
Cảm ơn chuyên mục.
Cường Vũ.
Kiến trúc sư tư vấn:
Để giải quyết nhu cầu của bạn, chúng tôi xin tư vấn thiết kế cho bạn cách sắp xếp bố trí nội thất sao cho căn hộ được thông thoáng và hợp lý nhất.
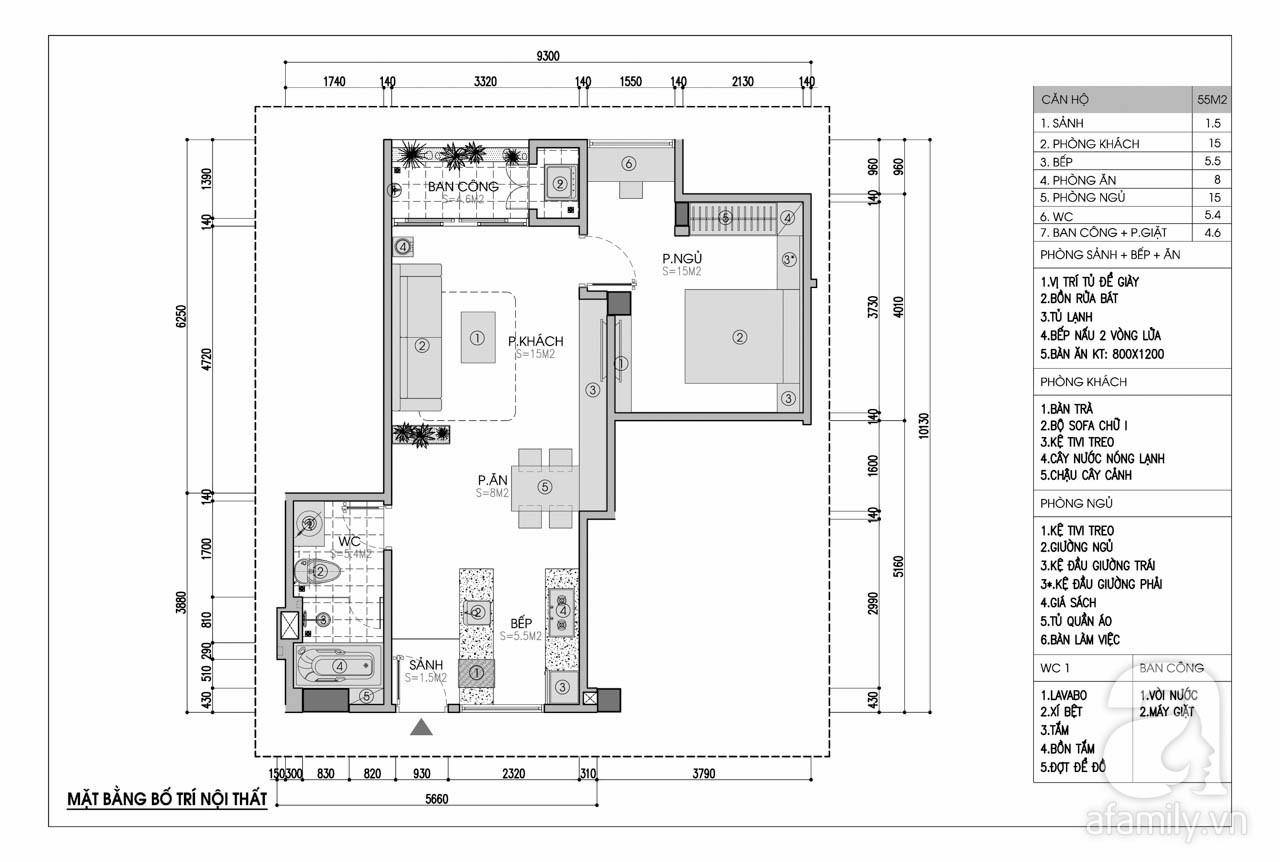
Bố mẹ bạn thật tâm lý khi mua cho con trai một căn hộ studio với đầy đủ công năng và tiện ích. Căn hộ có diện tích 55m², khá phù hợp cho thanh niên ở một mình. Căn hộ có ưu điểm là khá vuông vức, vậy nên không có bất kỳ khó khăn gì trong việc sắp xếp bố trí không gian sao cho hợp lý và thông thoáng nhất.
Căn hộ của bạn có không gian chia rất đẹp, KTS sẽ gợi ý cho bạn một số ý tưởng để bố trí nội thất sao cho hài hòa và tiết kiệm được không gian nhất có thể. Bước vào căn hộ sẽ là không gian bếp đầu tiên. Khu vực này có diện tích khiêm tốn, có thể thấy chúng tôi xử lý để tủ giày kẹp cùng bàn đá của hệ bếp rửa, rất tiết kiệm diện tích và không tốn chỗ đi lại. Hệ tủ bếp được chia làm 2 hệ, 1 hệ để tủ lạnh và bếp nấu, hệ còn lại để bồn rửa và tủ giày thấp, công năng được bố trí gọn gàng và ngăn nắp.
Căn hộ có khách, ăn và bếp được chia mở không gian thông thoáng, tạo cảm giác mạch lạc về giao thông. Khu vực ăn được bố trí bộ bàn ăn nhỏ xinh tone màu sáng, kết hợp đèn chùm tạo cảm giác ấm cúng, dễ chịu.
Vào phía trong cùng gần ban công nhất là phòng khách, khu vực này bố trí đồ nội thất tone màu sáng kết hợp màu gỗ sồi sẽ tạo cảm giác cho căn hộ rộng rãi hơn. Sử dụng ghế sofa chữ I tone màu ghi sáng kết hợp bàn trà vuông màu trắng sẽ tiết kiệm diện tích mà vẫn sang trọng, hài hòa. Hệ tủ tivi được bố trí đơn giản như tủ tivi và kệ để đồ décor. Không gian phòng khách được ưu ái nhất vì được bố trí gần ban công, đón nhận được nhiều ánh sáng tự nhiên nhất.
Không gian còn lại là phòng ngủ và WC. WC được bố trí bên trái từ cửa chính vào, còn phòng ngủ thì nằm phía bên phải. Phòng ngủ được bố trí đầy đủ công năng như giường, tủ quần áo, bàn làm việc, kệ giá sách, kệ tivi, táp đầu giường. khu vực bàn làm việc được bố trí sát cửa sổ để lấy ánh sáng tự nhiên.
Thiết kế nội thất: GREENLAND VIỆT NAM
Kiến trúc sư chủ trì: Đoàn Hữu Kiên











Hãy Comment chuẩn SEO vừa làm tốt cho site của Bạn vừa không bị GOOGLE phạt. Nếu muốn lấy backlink hãy chèn URL không chèn code gắn text link. Biểu tượng hài hướcEmoticon