Với căn nhà có diện tích 85.28m2, KTS đã khéo léo tư vấn cho gia đình bạn cách bố trí nội thất trong không gian thoáng mát và diện tích khá là thoải mái.
- · Không thể rời mắt khỏi mẫu bàn ăn mặt đá đầy cảm hứng
- · Gợi ý bàn ăn mạ PVD hiện đại cho căn hộ, chung cư
- · Trang trí nhà bếp với mẫu bàn ăn mạ vàng được nhiều người yêu thích
- · Chọn bàn ăn mạ titan làm sáng bừng không gian nhà bếp
Chào chuyên mục Nhà Hay,
Em là nữ sinh năm 1985, chồng em sinh năm 1984. Hiện nay, chúng em đang xây nhà cấp 4 mái tôn (theo mô hình em gửi kèm) gồm 02 phòng ngủ (3,9m x 4,8m và 3,9 m x 3,5m), 1 phòng khách (5,3 m x 4,2m), 1 bếp (6,2m x 4m), 1 vệ sinh. Nhờ anh chị tư vấn bố trí nội thất phòng khách, phòng ngủ và bếp cho hợp lý và hợp phong thủy cho em với ạ.
Bởi vì em thấy mọi người nói: phòng ngủ giường ko được đặt ngang nhà và cũng ko được đặt đầu ra ngoài đường. Còn phòng bếp thì nhà vệ sinh không được đối diện với bếp (trong khi đó nhà em xây bếp đối diện với vệ sinh) có phải không ạ?
Em thấy hoang mang quá vì nhà đã xây xong phần thô và không biết phải bố trí nội thấtthế nào. Rất mong anh chị giúp đỡ.
Cảm ơn anh chị nhiều.
Zuna
Kiến trúc sư tư vấn:
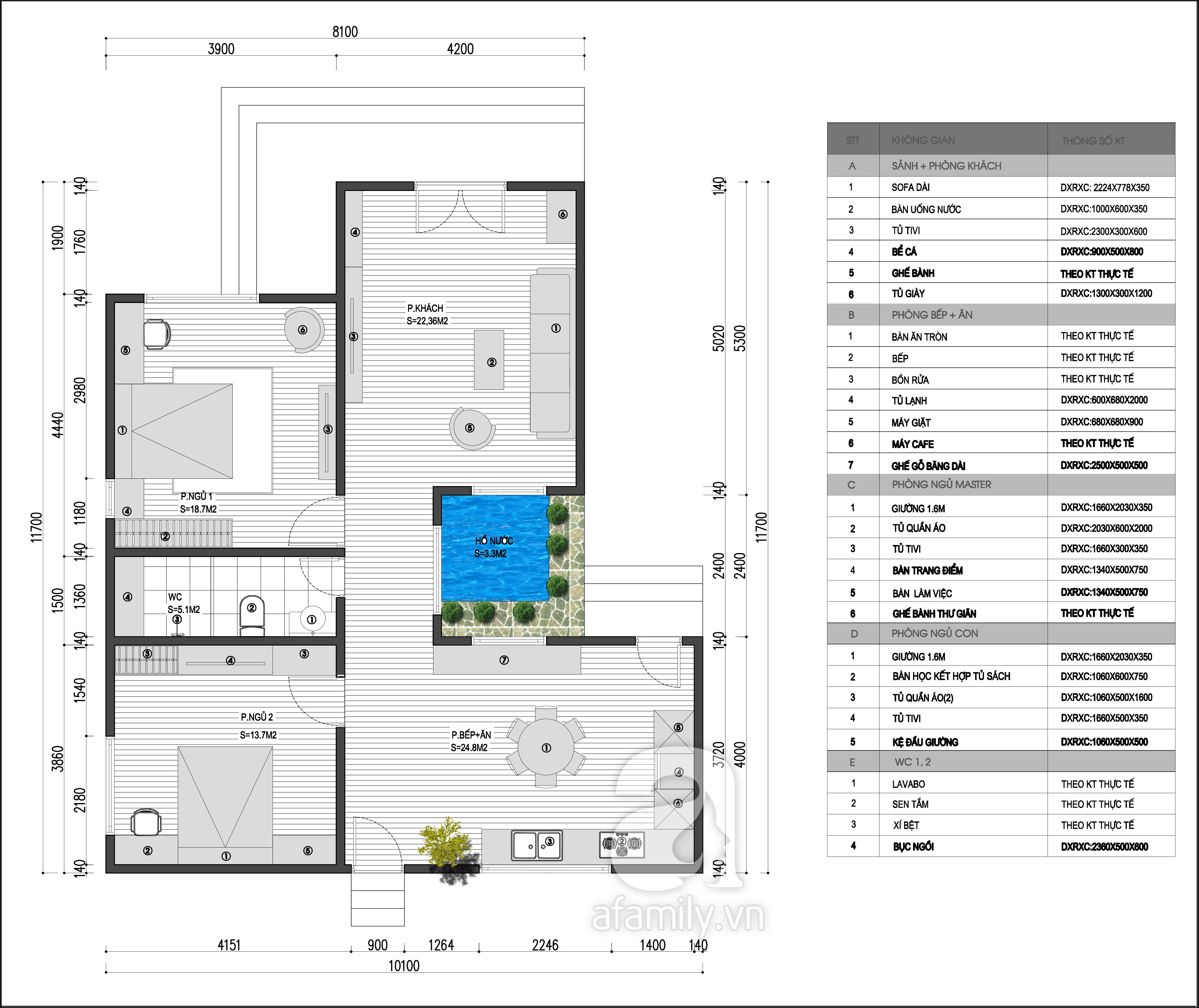
Dựa theo những thông tin mà bạn cung cấp và yêu cầu thiết kế cho ngôi nhà, chúng tôi xin đưa ra phương án mặt bằng bố trí nội thất để bạn tham khảo.

Mặt bằng hiện trạng

Phối cảnh hiện trạng.

Mặt bằng tư vấn bố trí nội thất.
Với mặt bằng hiện trạng, các không gian chức năng được phân chia khá là hợp lý và khoa học. Chỉ duy nhất không gian cần thay đổi là nhà vệ sinh từ cuối nhà chuyển lên giữa hai phòng ngủ để thuận tiện sử dụng cho cả gia đình. Căn nhà có rất nhiều ưu điểm: có 4 mặt thoáng kèm theo đó các không gian chức năng có diện tích khá là thoải mái. Vì vậy, chúng tôi sẽ đi sâu vào tư vấn bố trí nội thất sao cho hợp với phong thủy của từng thành viên trong gia đình bạn.
Bước vào căn nhà là không gian sinh hoạt chung của cả nhà với cách bố trí nội thất gọn gàng đơn giản mà bắt mắt. Với bộ ghế sofa chữ I áp tường kết hợp ghế bành thư giãn sẽ đem lại một không gian sang trọng hơn. Xung quanh là những đồ nội thất cần thiết như: kệ tivi kết hợp làm tủ sách, tủ đựng giầy. Ngoài ra để không gian thêm sống động bạn có thể bài trí một bể cá bên cạnh bộ ghế sofa. Không gian nơi đây sẽ vô cùng thú vị và hiện đại, có nước, có cây có gió nhờ khu vực tiểu cảnh hồ nước nằm giữa không gian bếp và phòng khách.
Khu vực bếp và ăn nằm ở cuối nhà. Từ không gian bếp có thể nhìn sang phòng khách qua cửa kính lớn. Để khu vực bếp được rộng rãi hơn thì sự lựa chọn tủ bếp chữ L là giải pháp hữu hiệu nhất. Kết hợp với bàn ăn tròn trong không gian vuông sẽ làm căn phòng trở nên mềm mại hơn. Ngoài ra bạn có thể bố trí thềm bục ngồi gần hồ bể để thư gian hoặc đọc sách, nơi đây là không gian lý tưởng cho gia đình bạn.
Đối diện với phòng khách và bếp là không gian sinh hoạt riêng gồm phòng ngủ con và phòng ngủ master. Phòng ngủ master với cách decor sáng tạo kết hợp với đồ nội thất hiện đại như: Giường, tủ quần áo, bàn làm việc kết hợp trang điểm.
Nhà vệ sinh được bố trí giữa hai phòng ngủ để thuận tiện cho việc đi lại của gia đình. Bên cạnh là phòng ngủ con. Phòng con có diện tích hạn chế hơn phòng ngủ bố mẹ. Vì vậy cách bố trí nội thất sẽ khác hơn để không gian căn phòng trở nên gọn gàng và rộng rãi. Căn phòng của con với góc học tập được bố trí bên cạnh cửa sổ sẽ giúp con học tập hiệu quả hơn.
Vì gia chủ sinh năm 1984 Giáp Tý thuộc hành Kim, như vậy hợp với màu trắng, ngoài ra còn hợp với màu nâu, màu vàng đất của hành Thổ, có thể kết hợp hai màu này trong thiết kế kiến trúc cũng như thiết kế nội thất trong gia đình để tăng thêm vượng khí cho gia chủ. Ngoài ra việc phối trộn màu hợp lý còn mang lại vẻ đẹp cũng như sự thoải mái thư thái cho mọi thành viên trong gia đình. Đồng thời khi thiết kế nội thất hay kiến trúc, gia chủ sinh năm 1984 nên tránh gam màu đỏ, , màu hồng, màu cam, màu tím, vì tượng trưng cho mệnh Hỏa. Mà theo thuyết ngũ hành tương khắc thì Hỏa khắc Kim.
Phòng bếp cũng là một yếu tố rất quan trọng trong phong thủy, vì mọi bệnh tật đều sinh ra từ đây.Hướng bếp nên đặt ở hướng xấu, và nhìn về hướng tốt, theo quan niệm Toạ hung hướng cát.
Hướng bếp có thể hiểu là hướng cửa bếp của bếp lò, bếp dầu, hướng công tắc điều khiển ra với bếp điện, bếp gas. Gia chủ có thể đặt bếp tọa các hướng xấu: Đông Nam , Bắc, Đông Nam và nhìn về các hướng tốt Đông Bắc, Tây Bắc, Tây Nam, Tây.
Ngoài ra, vị trí đặt bếp nên tránh đặt gần chậu rửa, tủ lạnh, không sử dụng cửa sổ phía sau, tránh giáp các diện tường hướng Tây. Cửa của bếp nấu kiêng kỵ để thẳng với cửa chính của nhà, hoặc nhìn thẳng vào cửa phòng ngủ, người nằm ngủ sẽ gặp tai ương tật ách.
Về phòng ngủ thì màu sắc rèm cửa nên sử dụng màu vàng, nâu. Đây là màu đại diện cho hành Thổ, rất tốt cho người hành Kim. Tủ quần áo nên kê tại các góc xấu trong phòng để trấn được cái xấu, là các góc Ngũ Quỷ, Hoạ Hại, Lục Sát, Tuyệt Mệnh. Giường ngủ cần tránh kê dưới dầm, xà ngang, đầu giường tránh thẳng với hướng cửa mở vào, thẳng với hướng gương soi.
Ngoài ra bạn cũng không nên trang trí rườm ra, điều đó sẽ làm cho căn phòng thêm chật chội. Bạn có thể sử dụng giấy dán tường hay những đồ decor độc đáo và bắt mắt, nó sẽ làm điểm nhấn giúp cho căn nhà của bạn thú vị và hấp dẫn hơn.
Hy vọng với phương án bố trí này sẽ đáp ứng được tiện nghi cũng như nhu cầu sinh hoạt của bạn và gia đình. Sau đây là một số hình ảnh tham khảo giúp bạn hình dung không gian sống của mình được tốt hơn.

Kệ tivi đơn giản.

Phòng ngủ master sang trọng với đồ nội thất tinh tế.

Phòng ngủ con với tone màu cá tính bắt mắt.

Bạn có thể bài trí thêm cây xanh để gần gũi với thiên nhiên hơn.
Hãy Comment chuẩn SEO vừa làm tốt cho site của Bạn vừa không bị GOOGLE phạt. Nếu muốn lấy backlink hãy chèn URL không chèn code gắn text link. Biểu tượng hài hướcEmoticon